Popis nemovitosti
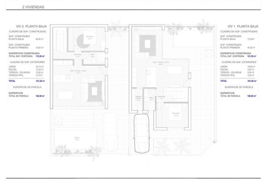
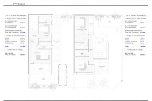
NEW BUILD TOWNHOUSES IN SAN PEDRO DEL PINATAR
ID nemovitosti: 47187
Cena: 285.000 €
Velikost nemovitosti: 0 m2
Velikost pozemku: 0 m2
Pokoje: 0
Ložnice: 3
Koupelny: 2
Podobné výpisy
Karel Křeček majitel společnosti
Prodejce a majitel společnosti
E-mail: kk@reka.cz
Telefon: 775 11 22 33
0 výpisy
























































