Popis nemovitosti
Bungalov v oblíbené urbanizaci Torreta 2, Torrevieja
Na prodej tento kouzelný bungalov v oblíbené urbanizaci Torreta 2, Torrevieja! 🌞✨
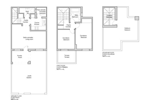
Užijte si pohodlí tohoto útulného domova s prostornou terasou cca 25 m², kde si můžete vychutnat ranní kávu na slunci. Bungalov nabízí 2 ložnice, světlý obývací pokoj, koupelnu, plně vybavenou kuchyni a praktický dvorek. Díky skvělé orientaci je tu slunečno od svítání až do soumraku! ☀️
Lokalita? Naprosto ideální! 🏡 Nachází se ve velmi klidné části na malebném náměstí, kde pohodlně zaparkujete své auto. Jen 5 minut chůze a jste v nákupním centru Las Habaneras nebo u supermarketů Carrefour a Mercadona. Na dosah máte také restaurace, kina a obchody – zábava i pohodlí na jednom místě! 🍽️🎬
Perfektní volba pro celoroční bydlení nebo dovolenou pod španělským sluncem! 🇪🇸💛 Nezmeškejte tuhle skvělou příležitost!





































