0 € na 5.000.000 €

Pokročilé vyhledávání

0 € na 5.000.000 €

3 bedroom Villa for sale in Fuente Alamo de Murcia

209.000 €
přidat do oblíbených
Vaše výsledky vyhledávání

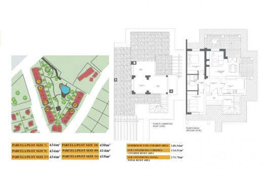
Popis nemovitosti

KEY READY VILLA IN FUENTE ALAMO, MURCIA

Stát/kraj: ,
Země: Spain
ID nemovitosti: 45641
Cena: 209.000 €
Velikost nemovitosti: 0 m2
Velikost pozemku: 0 m2
Pokoje: 0
Ložnice: 3
Koupelny: 2

Porovnejte